Lithoscape Residences

ClientResidential Complex (15 Units)ServicesArchitecture and Interior Design Year2025

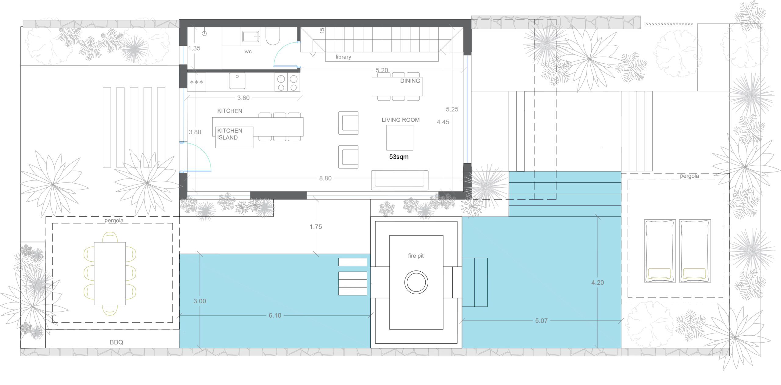
A sunlit residential complex on the hills of Iraklitsa, designed to embody coastal living through a refined material palette and elemental forms. Stone, plaster, and wood frame spaces that are open yet grounded—inviting the light and the sea breeze into every corner. The residences are shaped to balance privacy and openness, creating a minimal yet warm domestic atmosphere both inside and out.

Open space kitchen

Lithoscape Residences is a coastal housing complex comprising 15 independent units, located in the scenic landscape of Iraklitsa, Kavala. Designed with sensitivity to light, slope, and horizon, the project draws from the textures and forms of the Mediterranean, offering an architecture that feels both timeless and quietly grounded.
The complex combines robust materials—stone walls, mineral plasters, wooden surfaces—with clean, structured forms that interact seamlessly with the natural slope. Large openings and shaded verandas extend the living experience outdoors, while Mediterranean vegetation softens the geometry and reinforces privacy.
Each interior follows the same design logic. Minimal, custom-made furnishings blend into the architecture, creating tactile, calm spaces where natural light becomes the main feature. Living rooms, bedrooms, kitchens, and bathrooms are arranged to optimize openness without sacrificing intimacy.

Location

Iraklitsa, Kavala

Size

1,800 m²

Project Type

Residential Complex (15 Units)

Various project views

The project emphasizes a lifestyle of balance—between exposure and shelter, between raw materiality and refined detailing. Lithoscape Residences captures the spirit of slow coastal living, offering a sense of belonging to the landscape without visual excess.

Furnishing Details

Privacy Preference Center